- 賃貸のハウスメイトTOP

- 徳島県

- 賃貸物件詳細
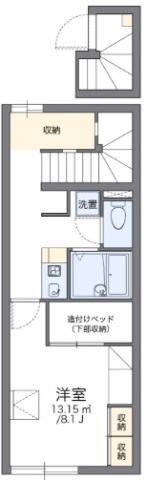
徳島県小松島市金磯町 1K アパートの物件情報
| 建物構造 | 木造 | 所在階/階数 | 2階/ 地上2階建て |
|---|---|---|---|
| 駐車場 | 有敷地内 料金(税込み)0.385万円 | 総戸数 | 18戸 |
| 引き渡し | 2025年12月中旬 | 現況 | 空室 |
| 物件コード | 5720095 | 取引形態 | 仲介 |
| 住宅保険 | 指定家財保険加入要 | めやす賃料 |
|
| 契約 | 普通借家 | 仲介手数料 | なし |
| 更新料 | 更新事務手数料 | ||
| 設備 | 給湯、BT別、浴室乾燥機、最上階、TVモニタ付ドアホン、宅配ボックス、駐輪場、CATV、冷蔵庫、家具付き、家電付き、エアコン、室内洗濯機置場、IHコンロ二口 | ||
| 入居条件 | |||
| その他の費用 | 室内クリーニング/入居時のみ41,800円 | ||
| 周辺環境 |
小学校:南小松島小学校 2750m 中学校:小松島中学校 3190m コンビニ:コンビニ 660m スーパー:スーパー 2070m |
||
| 備考 | |||
| 情報更新日 | 2025/12/13 | 次回の情報更新日 | 2025/12/20 |
※各種情報と現状に差異がある場合は、現状優先となります























